Get new listings emailed daily! JOIN SIGN IN
Clark Lauren
GRI, MBA
REALTOR®
(941) 374-8267
Facebook Icon LinkedIn Icon YouTube Icon Instagram Icon Twitter Icon 
$397,990

17863 Wheat Stack Court Parrish, FL 34219 Residential - Single Family Active

  • 17863 Wheat Stack Court , Parrish, FL 34219 Main Photo

2 Total Photos [Click to View All]

Description

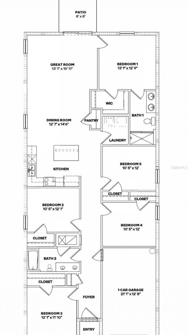
Under Construction. ALL CLOSING COSTS PAID, $5,000 towards upgrades + Special Interest Rates with the use of our preferred lender - Now through 3/31. The Alford is a one-story home that balances style, space, and comfort. Offering 5 bedrooms, 2 bathrooms, and 1,739 square feet, this floor plan provides plenty of room for families of all sizes. Its open-concept layout seamlessly connects the kitchen, dining, and living areas, creating a welcoming space that's ideal for gatherings or everyday living. The kitchen is a standout with shaker-style cabinetry, quartz countertops, and stainless-steel appliances, all overlooking the dining area for easy entertaining. With its thoughtful layout and modern finishes, the Alford makes it easy to create the home that fits your lifestyle. The primary suite is tucked at the back of the home for added privacy, featuring a walk-in closet and a private bathroom with dual vanities and a separate space for the shower and toilet. Four additional bedrooms at the front of the home offers flexibility for family, guests, or even a home office.

Property Highlights

Property Type: Residential - Single Family
Cooling: Central Air
Garage: 1 car attached
Heating: Electric
Lot Size: 0.14 Acres
Roof Type: Shingle
Stories: 1.0
Taxes: $0
Year Built: 2026

General Information

Bedrooms: 5
Bathrooms: 2 Full
Sqft: 1,739
County: Manatee
High School: Parrish Community High
Subdivision: RYE CROSSING
Listed By:
Sarah Bordeaux D.R. HORTON REALTY OF SARASOTA 941-256-7010

Amenities

Smart Home
Thermostat
Hurricane Shutters

Room Information

Great Room: 13x16
Kitchen: 11x13
Dining Room: 12x14
Primary Bedroom: 13x13
Bedroom 2: 10x12
Bedroom 3: 12x12
Balcony/Porch/Lanai: 8x8
Bedroom 4: 10x12
Bathroom 5: 10x12

Property Features

Appliances: Dishwasher, Dryer, Microwave, Range, Refrigerator, Washer
Association Amenities: Basketball Court, Clubhouse, Gated, Pickleball Court(s), Playground, Pool, Recreation Facilities, Tennis Court(s)
Builder: D R Horton
Community Features: Clubhouse, Community Mailbox, Fitness Center, Golf Carts OK, Playground, Pool, Tennis Court(s)
Directions: From Bradenton take I-75 N take exit 220 toward FL-64 E for half a mile. Then, use the left 2 lanes to turn left onto FL-64 E (follow signs for Zolfo Springs/Wauchula) for 4 miles. When you approach the traffic circle, take the 2nd exit and stay on FL-64
Exterior: Concrete
Flood Zone Code: X
Flooring: Carpet, Luxury Vinyl
Foundation: Slab
Garage Dimensions: 21X13
HOA Fee: 132/ Monthly
HOA Y/N: Yes
Home Warranty Y/N: No
Listing Terms: Cash, Conventional, FHA, VA Loan
Lot Dimensions: 0.14
Model: Alford
Other Equipment: Irrigation Equipment
Ownership: Fee Simple
Parking: Driveway, Garage Door Opener
Parking Notes: Driveway, Garage Door Opener
Pets Allowed: Yes
Pets Restrictions: Per HOA Guidelines
Pool: Other
Property Attached Y/N: No
Property Sub-Type: Single Family Residence
Security: Gated Community, Smoke Detector(s)
Sewer: Public Sewer
Showing Instructions: Call Listing Agent
Special Sale Provisions: None
Utilities: Electricity Available, Public
Water: Public
Water Access Y/N: No
Water View: Pond
Zoning: PD MU
$397,990
5beds
2.0baths
1,739sqft
1cars
New to the Market Active
BEDS5 BATHS2 full SQUARE FEET1,739 MLS#A4687228
STATUSActive PROPERTY TYPEResidential - Single Family SUBDIVISIONRYE CROSSING

Get in Touch

Contact an agent to learn more about

17863 Wheat Stack Court , Parrish, FL 34219.

Contact Form

Preferred Communication Method:

Estimate Your Payment

Estimated Payment

$ 1,458.43 per month $1,342.35 Principal & Interest $0.00 Property Tax (data not provided by mls) $116.08 Homeowner's Insurance

Change Payment Information

%
years/fixed
yearly
yearly (est.)
(Payments are an estimate and may vary by lender)

About this area

Florida/Parrish
Parrish

View Listings

About Parrish

Parrish is a growing, unincorporated community conveniently located between St. Petersburg, Tampa, and the Bradenton-Sarasota metropolitan areas. If you want to live in a close-knit community that’s also close to the city, Parrish is an ideal choice. Parrish offers condos, townhomes and single family home in suburban developments, and country homes on an acre or more. Parrish has its own newsletter called the Parrish Village News, which is distributed regularly for residents.

Learn More About Living in Parrish, Florida

About this community

Disclaimer: All information deemed reliable but not guaranteed. All properties are subject to prior sale, change or withdrawal. Neither listing broker(s) or information provider(s) shall be responsible for any typographical errors, misinformation, misprints and shall be held totally harmless. Listing(s) information is provided for consumers personal, non-commercial use and may not be used for any purpose other than to identify prospective properties consumers may be interested in purchasing. Information on this site was last updated 03/24/2026. The listing information on this page last changed on 03/24/2026. The data relating to real estate for sale on this website comes in part from the Internet Data Exchange program of Delta Media Group MLS (last updated Tue 03/24/2026 1:20:06 AM EST) or Stellar MLS (last updated Tue 03/24/2026 1:13:52 AM EST). Real estate listings held by brokerage firms other than Wagner Realty may be marked with the Internet Data Exchange logo and detailed information about those properties will include the name of the listing broker(s) when required by the MLS. All rights reserved.

Listing data and photos distributed by MLSGRID
Member Participants (and their affiliated licensees, if applicable) shall indicate on their websites that IDX information is provided exclusively for consumers’ personal non-commercial use, that it may not be used for any purpose other than to identify prospective properties consumers may be interested in purchasing, that the data is deemed reliable but is not guaranteed by MLS GRID, and that the use of the MLS GRID Data may be subject to an end user license agreement prescribed by the Member Participant’s applicable MLS if any and as amended from time to time. MLS GRID may, at its discretion, require use of other disclaimers as necessary to protect Member Participant, and/or their MLS from liability.
Based on information submitted to the MLS GRID. All data is obtained from various sources and may not have been verified by broker or MLS GRID. Supplied Open House Information is subject to change without notice. All information should be independently reviewed and verified for accuracy. Properties may or may not be listed by the office/agent presenting the information.



Privacy Policy / DMCA Notice / ADA Accessibility

Login to My Homefinder

Pixel